U kunt altijd even bellen: +31 475 495 079
Stacaravan outlet bekijken
Kenmerken
  • Merk:
    De Bergjes
  • Type:
    Da Vinci
  • Te bezichtigen: Vraag onze medewerkers voor meer informatie.
  • Beschikbare formaten:
  • Slaapkamers:2
Verkocht

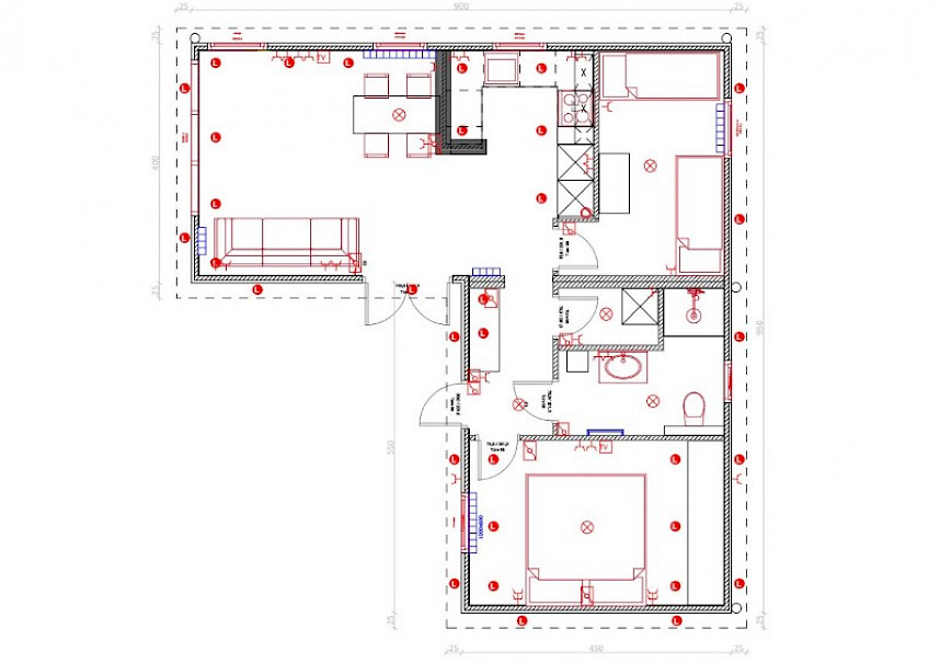
Deze prachtige Da Vinci L model inclusief tuinhuis is te koop( Zonder standplaats ). Het chalet met lessenaarsdak is voorzien van vinylplus houtlook buitenbekleding in combinatie met antracietkleurige kozijnen. 

Het heeft een fijn woongedeelte met daarin een mooie u keuken, deze is voorzien van een ruime koelkast met vriesvak, combimagnetron, 4 pits kookplaat  en vaatwasser. 

Achter de keuken bevindt zich een kleine slaapkamer met een 1 persoonsbed, hier past eventueel nog een extra bed of de ruimte kan dienen als opbergruimte of werkruimte. 

In het korte deel van het chalet bevindt zich de grote slaapkamer met een prachtige kastenwand. Hier aangrenzend bevindt zich een mooie ruime badkamer, met grote douche en hangend toilet. 

Verder is het chalet voorzien van plisseegordijnen en insecten horren en wordt compleet met meubilair geleverd.

Transport van dit chalet naar uw gewenste plek kunnen wij voor u verzorgen.

Interesse in dit chalet? Neem geheel vrijblijvend contact met ons op.

aanvullende diensten

 

 

Plattegronden

Ook interessant voor u

All-in pakket
De Bergjes Rushmore 1290/2
De Bergjes Rushmore 1290/2
voor € 136.950,-
Meer informatie
De Bergjes Silvretta Special Ostsee
De Bergjes Silvretta Special Ostsee
voor € 139.842,-
Voor € 130.394,-
Meer informatie
De Bergjes MZ Silvretta
De Bergjes MZ Silvretta
voor € 139.842,-
Meer informatie
De Bergjes Serie Bergline Lodge 1100/2 Super
De Bergjes Serie Bergline Lodge 1100/2 Super
van € 55.033,-
Outletprijs
Meer informatie
Heeft u een vraag